
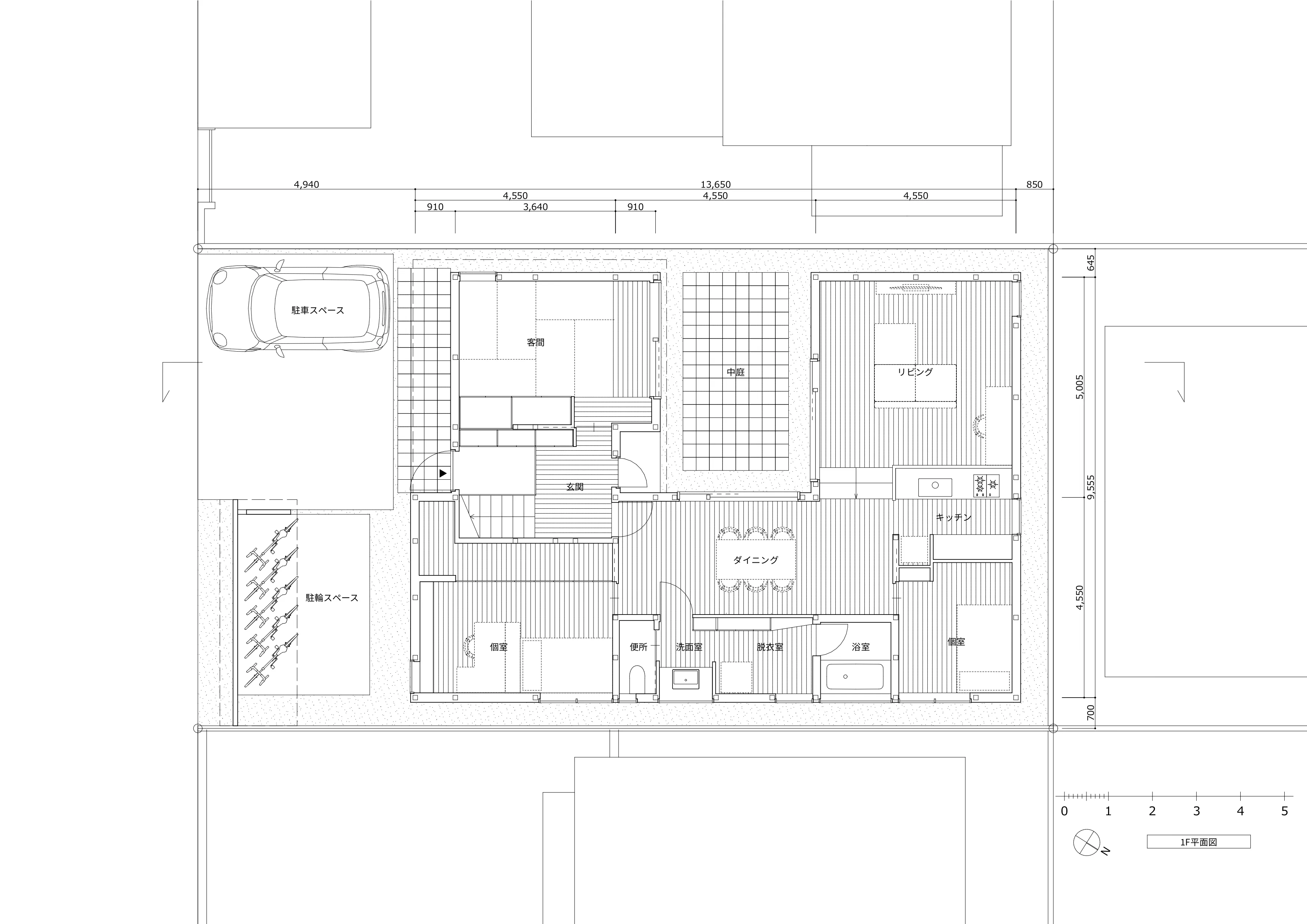
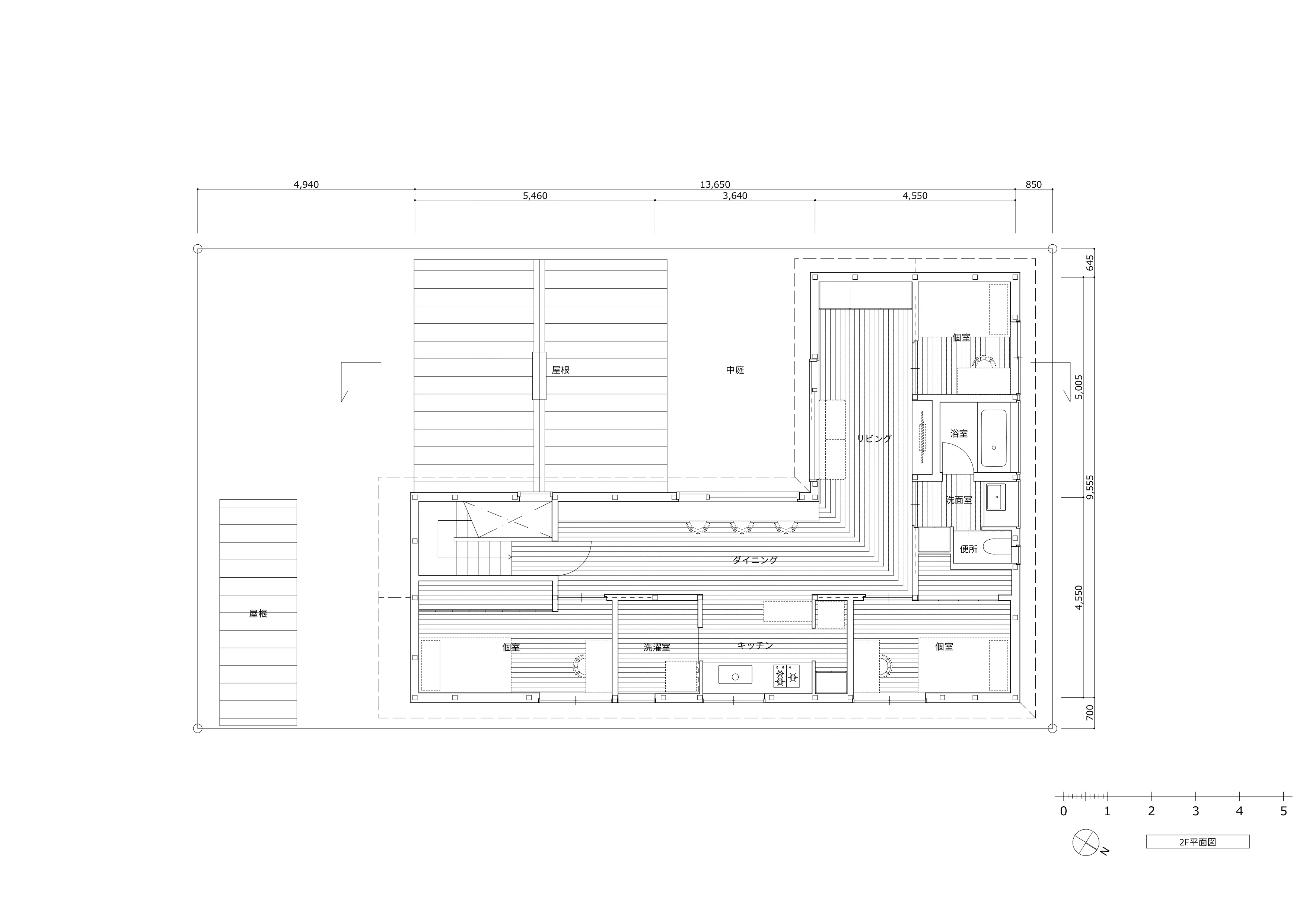
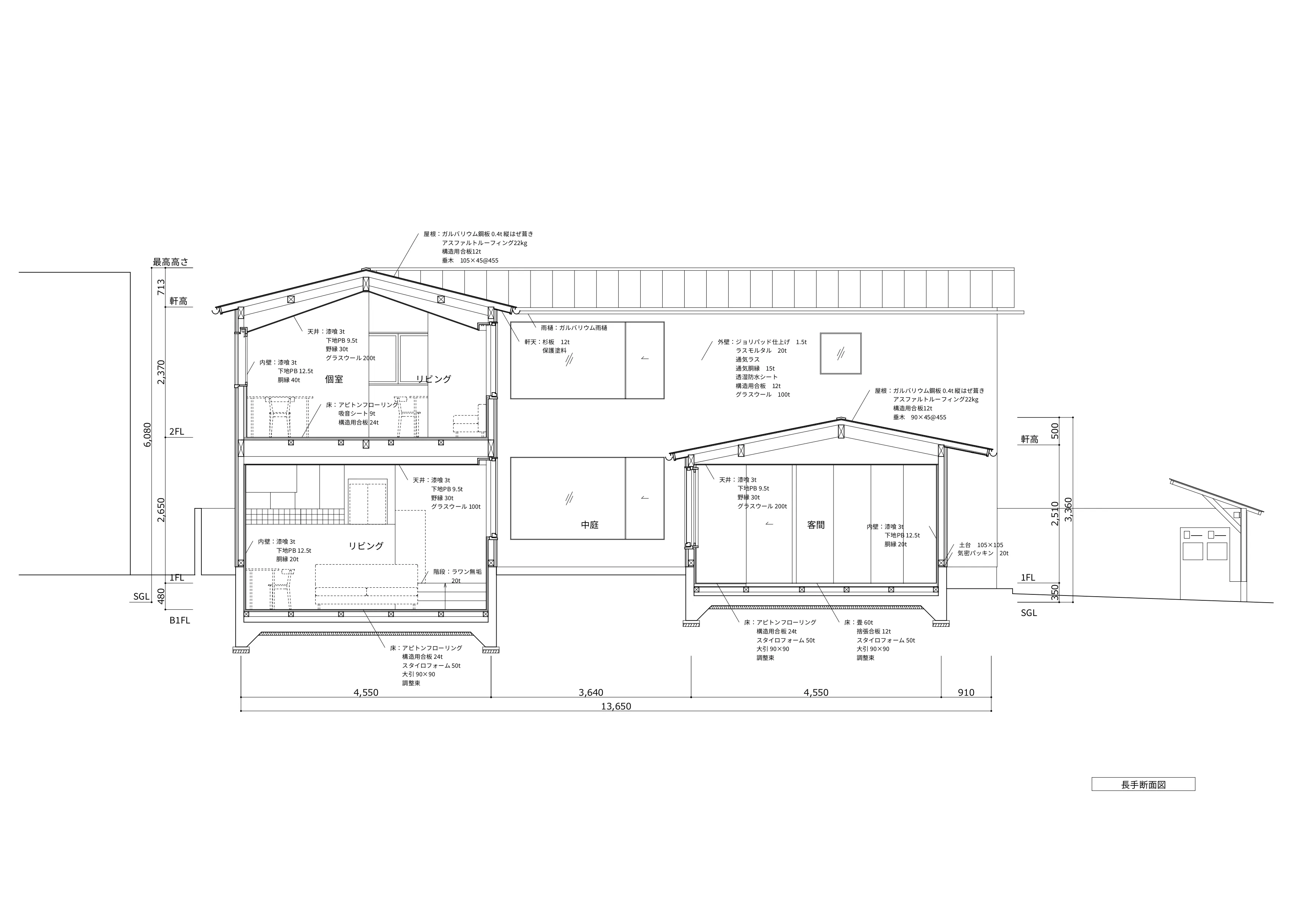
This residence was designed for a family of five—parents and children—with the goal of fostering shared spaces and moments while respecting individual daily rhythms.
Instead of the traditional model of isolated rooms lining a hallway, we've created a new paradigm for multigenerational living. Each private room maintains its independence, yet by simply opening a door, it seamlessly connects to the communal areas. This innovative spatial arrangement provides a flexible and adaptable home that supports the diverse family dynamics of today.























This residence was designed for a family of five—parents and children—with the goal of fostering shared spaces and moments while respecting individual daily rhythms.
Instead of the traditional model of isolated rooms lining a hallway, we've created a new paradigm for multigenerational living. Each private room maintains its independence, yet by simply opening a door, it seamlessly connects to the communal areas. This innovative spatial arrangement provides a flexible and adaptable home that supports the diverse family dynamics of today.
Design: Yoshifumi Hashimoto, Mire Kan
Construction: KASHINOKI CONSTRUCTION.CO.,LTD.
Structure: TECTONICA
Lighting Advisor: Masako Tamura
Environmetal Advisor: Masamichi Oura
Architectural Design Statement: Loft Access and Systems Upgrade in a Condominium Unit
This renovation project focused on a single condominium unit, primarily addressing the installation of a safe and accessible staircase to the loft and updating the building's mechanical systems. Our core philosophy was to respect and seamlessly extend the client's long-established way of life, resulting in a targeted, partial renovation that only addressed necessary areas.
To optimize the limited living room space, we designed a custom partition incorporating integrated storage for collectibles and records. Crucially, this partition features a pull-out staircase that can be extended only when needed to access the loft. This design allows for flexible space division and connection as life evolves, creating a space that not only functions efficiently but also beautifully reflects the client's accumulated years and memories within their home.
This project involved the conversion of a three-story steel-frame residence into a restaurant. From the earliest stages, we approached the design and construction with an openness to the surrounding urban environment, actively incorporating both the existing context and serendipitous on-site discoveries into the design process.
Our aim was not to achieve a pre-conceived, fixed spatial outcome. Instead, the designers and contractors worked collaboratively on-site, allowing the client and even neighboring residents to engage with the process daily. This enabled us to co-create the nature of the space and the identity of the establishment in a truly collaborative manner. This is a process-driven renovation, with rootedness and relationships as its core design principles.
This project involved designing a prototype for an app-integrated clinic within a compact, roughly 30-square-meter section of a commercial facility directly connected to a train station.
By enabling patients to complete reservations and medical questionnaires entirely through an app, we were able to eliminate the need for a traditional reception desk. This innovative approach allowed us to create a remarkably spacious and relaxed waiting area, even within a minimal footprint. An S-shaped bench, integrated planting, and a thoughtful lighting scheme work in concert to establish a calming environment where patients can feel at ease, even for a short visit.
Our goal was to create an inviting medical space that is open to the city, achieved through an expansive facade, while carefully maintaining patient privacy throughout the design.
This residence was designed for a family of five—parents and children—with the goal of fostering shared spaces and moments while respecting individual daily rhythms.
Instead of the traditional model of isolated rooms lining a hallway, we've created a new paradigm for multigenerational living. Each private room maintains its independence, yet by simply opening a door, it seamlessly connects to the communal areas. This innovative spatial arrangement provides a flexible and adaptable home that supports the diverse family dynamics of today.
Bakurocho, a space in Tokyo, was our base from 2022 to 2024. Rather than defining a purpose first, we created a place and intentionally left its use undetermined, calling it a "work-in-progress" space. Until our company's connection to Tokyo's communities and projects became clear, we used it as a place for organic interaction among our share members and their associates.
The space was gradually constructed and maintained by the share members. While it primarily served as a shared office, we also held irregular events like artist installations, bar nights, and soccer viewings. These events led to the formation of collaborative projects and even a soccer team among the members.
Based on the community and projects that emerged here, we launched **WAREHOUSE**, a studio in Ryogoku that co-creates with Tokyo's manufacturing sites, and relocated our base there.
The existing RC building, originally constructed as a combined residence and clinic, has been transformed into a new medical facility open to the community. By partially removing the exterior walls, we created a waiting and community space that allows views, breezes, and natural light to flow through—from the Ōkashiwa River at the front to the sunflower fields at the back. The exterior is landscaped with benches and greenery, offering a welcoming place where local residents can casually stop by and gather.
This pediatric clinic was designed as part of a broader initiative to establish community-rooted healthcare. Our core concept involved creating a "building within a building"—an enclosed, roofed structure nested inside the main space. This creates an intermediate zone around its perimeter that feels like a seamless extension of the outdoors.
Beyond simply housing the waiting area and reception, we intentionally brought traditionally back-of-house staff spaces to the front. This fosters natural interactions and a sense of attentiveness, resulting in a more approachable and welcoming environment that truly connects with the surrounding neighborhood. By reconfiguring the conventional elements of a clinic, we aimed to explore how private enterprises can contribute to and shape public-oriented spaces.
This renovation project was designed to be the definitive home for a couple in their sixties. A key request was to create individual private spaces that were as separated as possible. As their daughter and the architect, I drew inspiration from their previous home, specifically how their relationship had unfolded across their garden. I observed how they maintained a comfortable distance while still engaging with one another through this intermediary space, and I sought to translate this nuanced dynamic into the new design.
While ensuring ample and necessary private rooms, we zig-zaggedly extended the existing balcony. This expansion reconfigures it into a "garden-like" space where sightlines and circulation paths can intersect and evolve over time. The aim was to create a home that respects the couple's desired sense of individual space while simultaneously fostering and connecting their relationship.
NEWVIEW, an experimental project and community dedicated to xR (VR/AR/MR) in the fields of fashion, culture, and art, began accepting AR works from the third NEWVIEW AWARDS 2020. To inspire participating artists, it curated a collection of AR works. These projects demonstrated the broad potential of using this new technology by featuring a range of concepts, including content that changes based on user selection, pieces that are site-specific to the physical world, works that incorporate time-based elements like music and dance, and interactive experiences that blend AR with written instructions. The curations were a collaborative effort by four teams from diverse backgrounds in contemporary art and culture.
This project involved the renovation of a single condominium unit. Our core aim was to create an expansive and unconstrained living space, carefully considering both the client's current lifestyle and the potential for future relocation.
Using the existing structural beams as a guide, we gently articulated the space to ensure natural light penetrates deep into the unit. This subtle division maintains a continuous flow of interconnected living areas. The design intentionally incorporates open-ended "whitespace"—areas designed to be flexible and adaptable, allowing the meaning and function of each space to evolve with the inhabitant's needs over time.
Selected through an open call by the City of Kyoto—which is promoting the revitalization of the art market and creating an environment for artists to live, create, and exhibit in Kyoto—our company renovated the arts and crafts room and student council room of the former Keihoku Daini Elementary School.
We've started using these spaces as a base for artists (a multi-purpose studio and warehouse). For the studio's grand opening, we held a curtain-making workshop led by printmaker Yuzu Miyauchi.
This project involves the conversion of an existing convenience store into a medical clinic, offering both internal medicine and gynecology services.
The site is situated within an industrial zone, characterized by large-scale factories, warehouses, shopping malls, public housing, and a baseball stadium, each occupying expansive plots. The surrounding landscape presents a monotonous tableau, defined by these facilities, their enclosing fences, and formally arranged plantings. However, there's a noticeable presence of pedestrians and cyclists from nearby schools and residential areas, underscoring the need to create inviting spaces that cater to the community.
Our design approach embraces this existing landscape rather than negating it. We've sought to introduce a human scale by symbolically referencing and incorporating elements like fences and plantings, which are prevalent in the area. These elements, traditionally used to delineate boundaries, are reinterpreted to actively draw people into the site and encourage them to linger.
The existing convenience store building will remain largely untouched, serving primarily as a boundary between interior and exterior. The goal is to create a clinic that doesn't stand as an isolated structure within a vast site, but rather one that seamlessly integrates with the streetscape and the daily lives of residents. We envision a clinic where the experience of passing through the neighborhood naturally transitions into a visit, fostering a sense of connection and accessibility.
This project is an attempt to rediscover the hidden potential of an existing building—a combination of two houses joined with minimal effort—and its surrounding environment. The goal is to renovate it into a multi-functional residence serving as the designer's home, office, shop, and guesthouse. The layout, centered around a staircase, improves the poor ventilation from the original extension. This central circulation path acts as a flexible connection, sometimes linking private and guest spaces, and at other times creating distinct living areas with shoji-like partitions. By pursuing spatial flexibility and incorporating diverse functions within a 120㎡ footprint, this design proposes a versatile residence that supports our rich lifestyle.